Prodej horského apartmánu na Dolní Moravě - PRODÁNO!

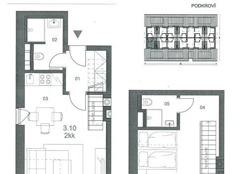
Hledáte investici nebo místo pro odpočinek? Prodej zavedeného, atraktivního a kompletně vybaveného apartmánu 2+kk v srdci Dolní Moravy. Představuje výbornou příležitost pro investory i pro ty, kdo hledají dokonalé místo pro relaxaci a rekreaci. Jedná se o vlastnictví s nízkými náklady na údržbu. Při pořízení apartmánu na firmu možnost odečtu DPH ve výši 21%! Vysoký potenciál pro zhodnocení investice. Dispozice: 2+kk - mezonetový apartmán o vel. 51 m2 se nachází v 2. patře apartmánového domu s dvěma koupelnami a WC dohromady. Vstupní prostor nabízí praktické úložné skříně a dveře do spodní koupelny s prostorným sprchovým koutem. V hlavní obytné části je vybavená kuchyň s jídelním stolem, sedací souprava s TV a komodou. V podkroví se nachází útulná ložnice s krásným výhledem a komfortní druhá koupelna. Masivní dřevěné schodiště stylově rozděluje prostor podkroví a obývací část s kuchyňským koutem. Součásti nabídky je moderní vybavení a vysoce kvalitní interiérové provedení: kuchyňská linka na míru s jídelním stolem pro 4 osoby a přípravným pultem, útulný prosvětlený obývací pokoj s rozkládací sedací soupravou pro 2 osoby + možnost přistýlky pro další osobu. V ložnici v patře naleznete pohodlnou manželskou postel a komodu. K apartmánu je k dispozici uzamykatelná kóje umístěna v přízemí domu, určena pro kola nebo lyže. Vyhrazené parkování přímo před objektem za dálkově ovládanou závorou je součástí této nabídky. Vytápění místností zajišťují přímotopy s termostaty, které je možné ovládat dálkově pomocí mobilní aplikace, v koupelnách je instalováno elektricky vytápění podlah a žebřinová topení. Ohřev vody je zajištěn pomocí dostatečně velkého elektrického bojleru. Ideální poloha pro milovníky přírody a aktivního odpočinku, přímo pod lyžařským střediskem Větrný Vrch - pouhé 3 minuty autem od hlavního SKI resortu na Dolní Moravě. Tento horský apartmán je perfektní volbou jak pro osoby hledající místo pro odpočinek a regeneraci, tak pro investory hledající nemovitost s vysokým potenciálem krátkodobých pronájmů v oblíbené turistické destinaci, která se nachází v oblasti Kralického Sněžníku na rozhraní Orlických hor a Jeseníků. Díky své strategické poloze nabízí celoroční vyžití - nedaleko hlavního lyžařského střediska DM, zábavních a adrenalinových aktivit, např.: Sky-Walk, Sky-Bridge 721, nejdelší bobová dráha v ČR, zážitkové dětské parky, lanové centrum, dále rozsáhlá síť cyklostezek i singl trailů a nespočet turistických tras pro pěší. V zimních měsících si své najdou i nadšenci běžeckého lyžování a ski-alpu. Pro více informací nebo pro sjednání prohlídky nás neváhejte kontaktovat. Těšíme se na vaši návštěvu a příležitost ukázat vám vše, co tento úchvatný apartmán může nabídnout a jaké ekonomické výhody nabízí tato investice. Kontaktujte nás ještě dnes a začněte psát novou kapitolu svého života na Dolní Moravě!

Lokalita: Ústí nad Orlicí

Cena: 1 CZK

Kód inzerátu: N159


Máte zájem o naši nabídku?

Další nemovitosti z naší nabídky

Pronájem bytu 2+kk s lodžií v Rosicích u Brna PRONAJATO!
Pronájem bytu 2+kk s lodžií v Rosicích u Brna PRONAJATO!
Pronájem bytu 2+1 v žádané lokalitě Žabovřesky - PRONAJATO!
Pronájem bytu 2+1 v žádané lokalitě Žabovřesky - PRONAJATO!
Pronájem komerčního prostoru v Tišnově
Pronájem komerčního prostoru v Tišnově